Poslednje
pregledano
pregledano
Prodaja stanova Stara Bežanija - Trosoban
Kupujete ili prodajete stan? Veliki broj aktuelnih oglasa za prodaju stanova u Srbiji. Pogledajte aktuelnu ponudu oglasa na našem sajtu! - Stara Bežanija - Trosoban
Sve lokacije
(Možete izabrati više gradova)
Trenutno nema rezultata za zadati pojam pretrage.
- proverite da li ste dobro uneli pojam
- obrišite sve filtere ovde i pokušajte ponovo
- pokušajte pregled po kategorijama
- sačuvajte pretragu i dobićete obaveštenje kada se pojave oglasi koji zadovoljavaju ovu pretragu
225.225 €
3.224 €/m2
Trosoban stan na Prvom spratu Novi Beograd
- Beograd
- Opština Novi Beograd
- Stara Bežanija
- Vojvođanska
- 69,85 m2Kvadratura
- 3.0 Broj soba
- I/4 Spratnost
Stan 2 u lameli 1 u Vojvodjanskoj ulici u Novom Beogradu Nakon uspešno završenog projekta “V PARK” sa 46 stanova, sa ponosom nastavljamo dobru...
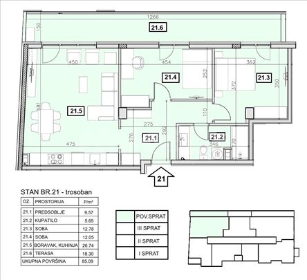
272.288 €
3.200 €/m2
Trosoban stan sa velikom terasom
- Beograd
- Opština Novi Beograd
- Stara Bežanija
- Vojvođanska
- 85,09 m2Kvadratura
- 3.0 Broj soba
- IV/4 Spratnost
Stan 21 u lameli 2 u Vojvodjanskoj ulici u Novom Beogradu Nakon uspešno završenog projekta “V PARK” sa 46 stanova, sa ponosom nastavljamo dobru...
221.490 €
3.000 €/m2
Lux novogradnja, Novi Beograd, Vinogradska 3D tura
- Beograd
- Opština Novi Beograd
- Stara Bežanija
- Vinogradska
- 73,83 m2Kvadratura
- 3.0 Broj soba
- I/5 Spratnost
Poslednji ovakav trosoban stan u okviru projekta Sjajna novogradnja, projektovana za izgradnju na super lokaciji! Od ukupno 74 stana, poslednji...
Trenutno nema rezultata za zadati pojam pretrage.
- proverite da li ste dobro uneli pojam
- obrišite sve filtere ovde i pokušajte ponovo
- pokušajte pregled po kategorijama
- sačuvajte pretragu i dobićete obaveštenje kada se pojave oglasi koji zadovoljavaju ovu pretragu
Kupujete ili prodajete stan? Veliki broj aktuelnih oglasa za prodaju stanova u Srbiji. Pogledajte aktuelnu ponudu oglasa na našem sajtu! - Stara Bežanija - Trosoban













